

| Water Venture designs and builds WaterPlayGrounds and zero-depth spraygrounds from 600 square feet to 20,000 square feet. Simple zero-depth spraygrounds feature both below-ground water jets and above-ground water features to keep children happy and entertained on hot summer days. WaterPlayGround structures can be added to includes slides, tipping buckets and dozens of interactive features. Water Ventures designs and card builds the complete WaterPlayGround facility including the pumphouse building, lighting, landscaping, safety fencing, viewing patio, shade structures and even options as lightning detection systems and tickets kiosks. Call us today to discuss your ideas for a WaterPlayGround. Rides
Lists. |
|

This attraction is a 60' by 50' oval WaterSprayGround, offering 13 interactive water features*, with filtration system , mechanical room, patio, fencing, landscaping, night lighting & gazebo.
*Below
Ground Water features: (1) CircleTime, (1) Pop Jet, (1) Shower Tunnel, (1)
Upstream Jet, (4) Slant Jets.
Above Ground Water Features: (1) SuperSoaker, (1) TooLip Jet, (1) Tumblebuckets,
(1) Crossbar Jet, (1) DownSpout.
![]() |

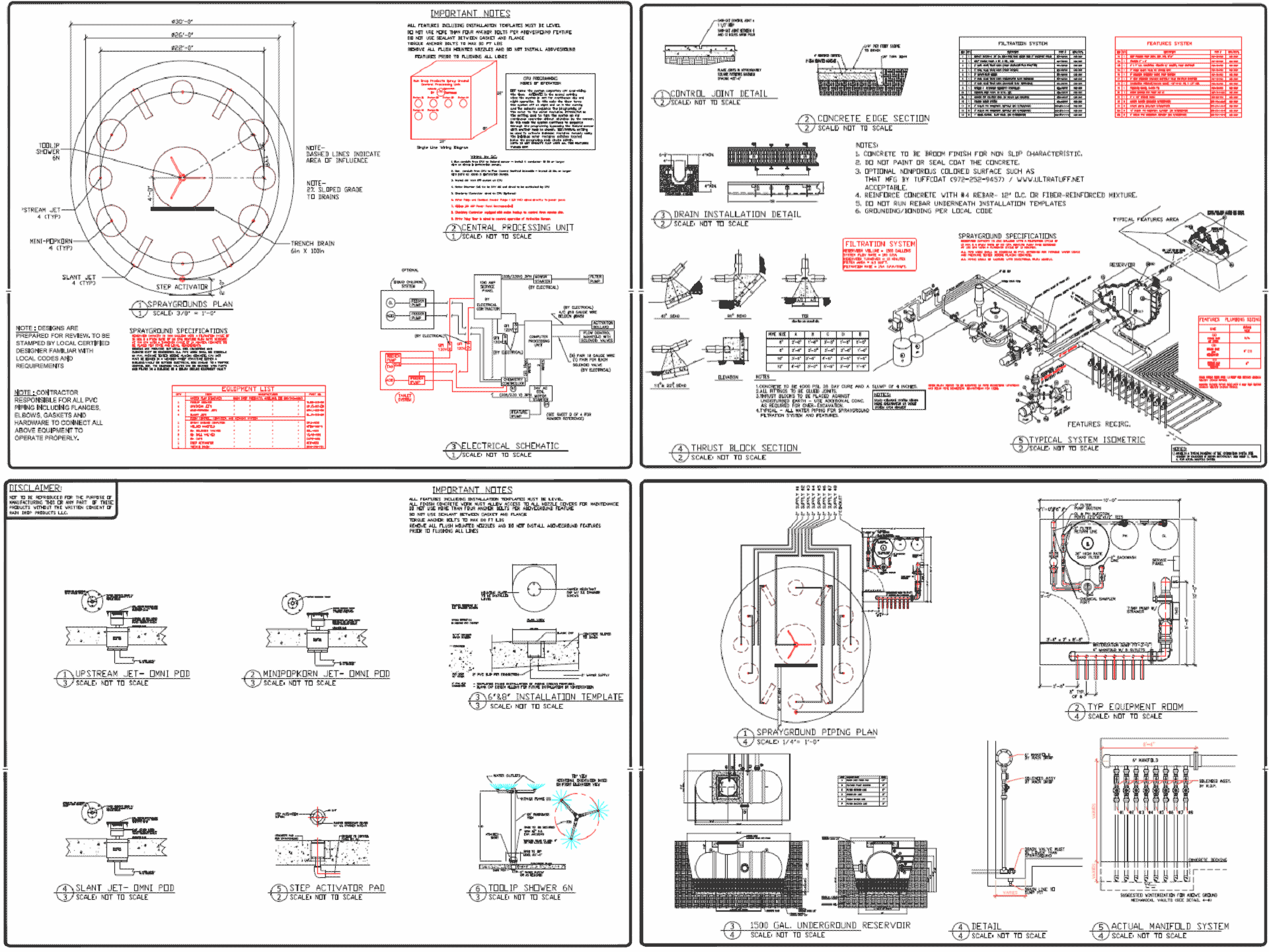
This attraction is a 30' circle & 700 square feet
WaterSprayGround , offering 10 interactive water features*, with filtration
system , mechanical room, patio, fencing, landscaping, night lighting
& gazebo.
*Below
Ground Water features: (4) Slant-Jets, (4) Mini Popkorn Jets, (1) Upstream
Jet.
Above Ground Water Features: (1) TooLip Shower.
![]() |

This
attraction is a 110' X 50' kidney shape & 4300 square feet WaterSprayGround
, offering 16 interactive water features*, with filtration system , mechanical
room, patio, fencing, landscaping, night lighting & gazebo.
*Below
Ground Water features: (3) Fan Jets, (1) Circle Time, (1) Pop Jet, (1) Shower
Tunnel, (1) Mini Popkorn Jets.
Above Ground Water Features: (1) Dew Drop, (1) SuperSoaker, (1) TooLip Jet,
(1) TumbleBucket, (1) Shower Tower, (1) TooLip Shower, (2) Water Fun Cannon,
(1) Bubble Up.
![]() |